Tárkány - Eladó Ház
98 m2
65.000.000 Ft
340486
Tárkányon újépítésű családi ház kulcsrakész állapotban eladó
Leírás
Fedezd fel Tárkányon az új otthonodat egy újépítésű, kulcsrakész családi házat!
Megépítésre kerül egy modern, kulcsrakész családi ház, amely tökéletes helyszín lehet álmaid családjának.
Az ingatlan újépítésű, fiatalos lendülettel és kiváló minőségű kivitelezéssel várja azokat, akik értékelik a praktikus kialakítást és a stílusos megjelenést.
Ez az otthon nemcsak esztétikus, hanem rendkívül funkcionális is – tágas, világos terek, modern konyha, kényelmes hálószobák és praktikus fürdőszoba biztosítja a kényelmet és az otthonosság érzését. A beépített anyagok és a precíz kivitelezés garantálja a hosszú távú, problémamentes használatot.
Az újépítésű ingatlan főbb jellemzői:
- várható átadási határidő: 2026.12.31. ( építkezés előre haladása esetén ez rövidülhet)
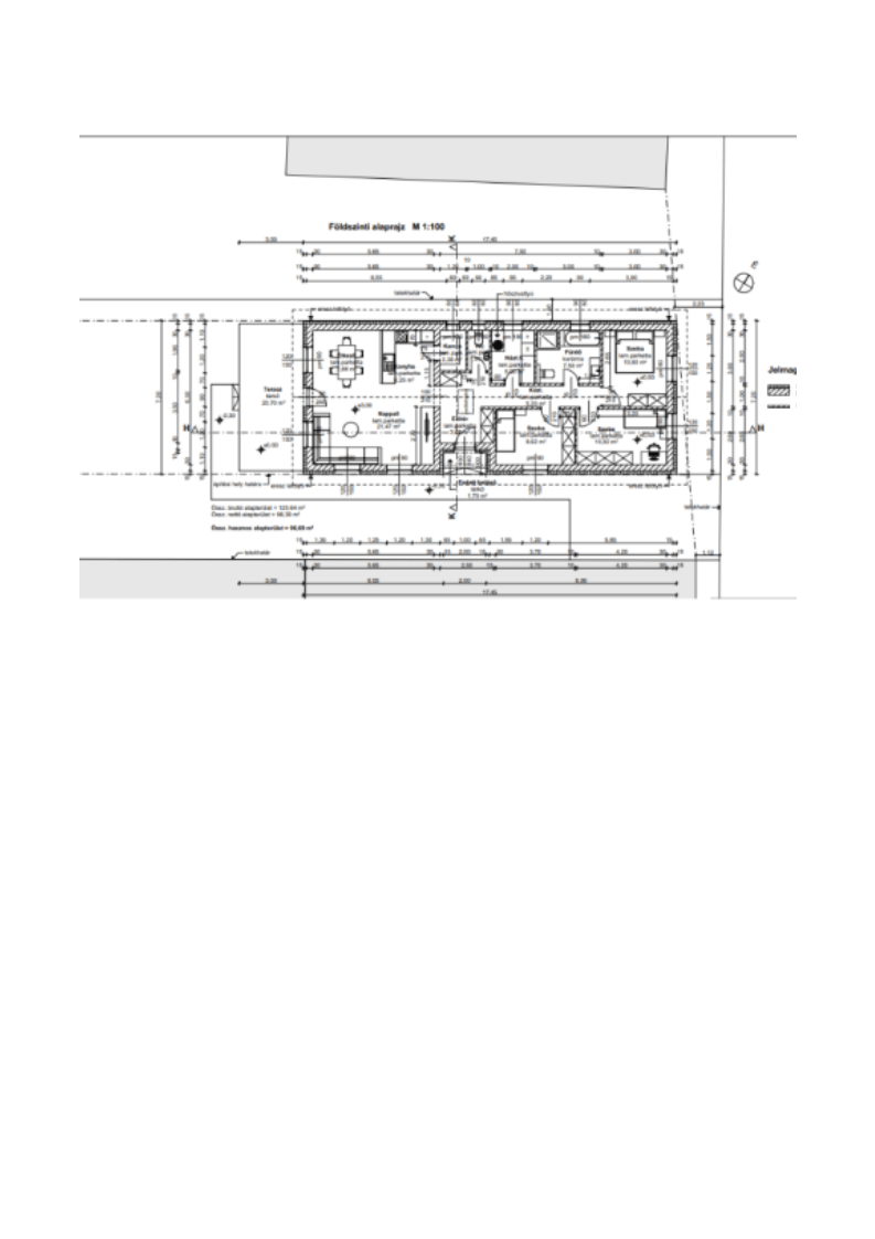
- helyiségek: 1 szoba: 10,92 nm, 2 szoba: 10,80 nm, 3 szoba: 9,62 nm, nappali: 21,47 nm, konyha: 6,25 nm, étkező: 7,88 nm, kamra: 2,28 nm, külön álló wc: 1,90 nm, háztartási helyiség: 5 nm, fürdőszoba: 7,50 nm, előszoba: 7,87 nm, közlekedő folyosó: 5,20 nm
- szerkezete: tégla falazat+15 cm hőszigetelés
-tető szerkezete: szeglemezes tetőszerkezet cserépfedéssel
- energetikai besorolása: A+
- telek mérete: 881 nm
- lakótér nagysága: 98,39 nm
- hideg-meleg burkolatok vevő által kiválasztható egy meghatározott keretösszeg szerint
- fűtés: mennyezet hűtés-fűtés, kiegészítő padlófűtéssel, hőszivattyúval
- alapozása jellemzően 50 cm széles sávalapozással történik
-falazata 30 cm vastag kerámia falazat
Az ingatlan építési hitellel is megvásárolható!
Hitelügyintézésben díjmentesen állunk vevőink részére!
Ideális választás fiatal családoknak, akik szeretnének egy lendületes, könnyen berendezhető lakóhelyet, ahol minden nap új élmény lehet.
Vágj bele az életetek legszebb kalandjába – ez a ház készen áll arra, hogy az otthonoddá váljon!
Ne hagyd ki ezt a lehetőséget, keresd a részleteket még ma!
A hirdetésben szereplő adatok és alaprajz kizárólag tájékoztató jellegűek! Bővebb felvilágosítás az ingatlan személyes megtekintése során!
Kapcsolati adatok
Érdeklődjön az ingatlanról, e-mailben!
Hasonló ingatlanok
Tárkány
Tárkány településen építési teleknek megfelelő terület eladó!
Tárkány
Tárkány településen FALUSI CSOKRA is megvásárolható családi ház ...
Tárkány
Eladó Tárkány településen egy fő úti elhelyezkedésű ingatlan!