Tárkány - Eladó Telek
881 m2
4.300.000 Ft
340370
Tárkány
Leírás
Tárkányon Falusi Csok-os településen eladásra kínálunk egy építési telket!
Az eladó építési telek főbb jellemzői:
- elektromos áram telken belül mérőórával ellátott 16 A
- földgáz, csatorna, vezetékes ivóvíz telek előtt az utcában elérhető
- telek mérete: 881 nm
- beépíthetőség: 30 %
- részben lekerített
A teleken megvalósítható családi ház szerkezeti megkötés nélkül kivitelezhető.
Elhelyezkedése a központhoz kb 800 méter távolságra található.
A településen távolsági buszközlekedés áll a rendelkezésre.
Élelmiszer boltok, gyógyszertár, dohánybolt, általános iskola, posta, bölcsőde és óvoda illetve ruhás üzlet, kertészet és más egyéb szolgáltatók állnak a rendelkezésre a lakosság részére.
A telek rugalmasan megtekinthető időpontos egyeztetést követően!
Hitelügyintézésben szakértőként állok a rendelkezésére!
Várom hívását!
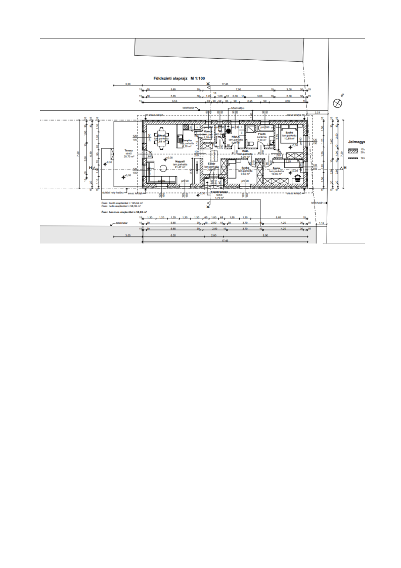
A hirdetésben szereplő adatok és alaprajz kizárólag tájékoztató jellegűek! Bővebb felvilágosítás az ingatlan személyes megtekintése során!
Kapcsolati adatok
Érdeklődjön az ingatlanról, e-mailben!
Hasonló ingatlanok
Kisbér
Kiváló befektetési lehetőség Kisbéren!
Telek ( szántó megnevezéssel ) eladó, csendes, kertvárosias környezetbe...
Komárom
Komárom - Koppánymonostoron új építésű utcában eladásra kínálunk 2 db egymás melletti építési telket!
Az eladó...